堺市西区家原寺町1丁 A号地

4,090万円

大阪府堺市西区家原寺町1丁

阪和線「津久野」駅徒歩15分

価格
4,090万円
間取り
4LDK
土地面積
189.13㎡
所在地
大阪府堺市西区家原寺町1丁
交通

阪和線津久野」駅 徒歩15分

建物面積
98.53㎡
築年月
2025年7月(新築)

基本情報

販売戸数
-
総戸数
-
間取り / 詳細
4LDK
向き
-
建物面積(坪数)
98.53㎡(29.8坪)
土地面積(坪数)
189.13㎡(57.21坪)
建ぺい率 /
容積率
50%/100%
築年月
2025年7月(新築)
駐車場 / 月額
有(2台) / -
土地権利
所有権
土地
(敷金 / 保証金)
- / -
建物構造
木造 / 2階建
傾斜地部分面積
-
路地状敷地
-
私道負担面積
-
セットバック
高圧線下面積
-
施工会社
-
用途地域
第一種低層住居専用
地目 / 地勢
宅地 / -
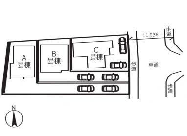
接道状況
一方(東 公道 3.0m 間口 11.9m)
国土法届出要否
不要
都市計画
市街化区域
総区画数 /
販売区画数
-/-
現況
完成済み
その他
法令上の制限
-
取引態様
仲介
引渡し
相談
取引条件の
有効期限
2026年05月22日

設備条件

設備条件
設備(その他)
    -

その他

物件番号
96821132
管理コード
-
建築確認番号
第KS125-6110-00055号
情報更新日
2026年05月08日
次回更新予定日
2026年05月22日
取扱会社
  • コーシンホーム株式会社
  • 大阪府堺市東区白鷺町1丁5番1‐2号 
  • TEL:0120-519-120
  • 大阪府知事 (3) 第056355号
  • 公益社団法人 全国宅地建物取引業協会連合会
    公益社団法人 全国宅地建物取引業保証協会
    公益社団法人 近畿圏不動産流通機構
    一般社団法人 全国賃貸不動産管理業協会
    一般社団法人 さかい空家バンク

支払いシミュレーション

月々の支払額

※実際の金額と異なる場合があります。

購入希望物件価格
万円
頭金
万円
金利
%
返済額(ボーナス1回分)
万円
返済期間

※ボーナスは自動で年2回分で計算されます。

近隣の物件

  1. 堺市西区草部

    堺市西区草部

    4LDK (101.25㎡)

    2,698万円

  2. 堺市西区堀上緑町 新築一戸建て

    堺市西区堀上緑町1丁

    4LDK (95.95㎡)

    3,390万円

  3. 堺市西区浜寺船尾町西4丁 新築戸建

    堺市西区浜寺船尾町西4丁

    3LDK (89.01㎡)

    3,390万円

よく見られている物件

  1. 堺市北区長曽根町の新築一戸建

    堺市北区長曽根町

    4LDK (101.44㎡)

    5,180万円

  2. 堺市東区大美野 7期 新築一戸建て

    堺市東区大美野

    3LDK (96.04㎡)

    3,980万円

  3. 堺市第五北区長曽根町

    堺市北区長曽根町

    2LDK+2S(納戸) (116.89㎡)

    4,580万円

  4. 堺市西区上野芝向ヶ丘町5丁の新築一戸建

    堺市西区上野芝向ヶ丘町5丁

    3LDK (104.11㎡)

    2,990万円

堺市西区家原寺町1丁

堺市西区家原寺町1丁

4,090万円

-

4LDK(98.53㎡)

お気軽にお問い合わせください

無料お問い合わせ

コーシンホーム株式会社

0120-519-120

9:00~18:00

(休:火曜日(隔週)、水曜日)