堺市東区日置荘西町 新築一戸建て B号地

3,590万円

大阪府堺市東区日置荘西町1丁

南海高野線「初芝」駅徒歩6分

南海高野線「萩原天神」駅徒歩17分

南海高野線「白鷺」駅徒歩22分

価格
3,590万円
間取り
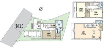
3LDK
土地面積
90.93㎡
所在地
大阪府堺市東区日置荘西町1丁
交通

南海高野線初芝」駅 徒歩6分

南海高野線萩原天神」駅 徒歩17分

南海高野線白鷺」駅 徒歩22分

建物面積
91.91㎡
築年月
2025年7月(新築)

物件の特徴

  • TVモニタ付きインターホン

  • カウンターキッチン

  • 浴室乾燥機

基本情報

販売戸数
4戸
総戸数
4戸
間取り / 詳細
3LDK
LDK 19.0帖/洋室 7.5帖/洋室 6.0帖/洋室 5.7帖
向き
南西
建物面積(坪数)
91.91㎡(27.8坪)
土地面積(坪数)
90.93㎡(27.50坪)
建ぺい率 /
容積率
60%/200%
築年月
2025年7月(新築)
駐車場 /
月額料金
有(1台) 0円
土地権利
所有権
土地
(敷金 / 保証金)
- / -
建物構造
木造 / 2階建
傾斜地部分面積
-
路地状敷地
-
私道負担面積
-
セットバック
高圧線下面積
-
施工会社
-
用途地域
第一種中高層住居専用
地目 / 地勢
宅地 / -
接道状況
角地(南西 私道 2.7m)(南東 私道 3.7m)
国土法届出要否
不要
都市計画
市街化区域
総区画数 /
販売区画数
4区画/4区画
現況
完成済み
その他
法令上の制限
-
取引態様
仲介
引渡し
即時
取引条件の
有効期限
2026年02月03日

設備条件

設備条件
  • 陽当り良好 / 閑静な住宅地 / バリアフリー / 建設住宅性能評価書付 / フローリング / バルコニー / ルーフバルコニー / 都市ガス / 公営水道 / 公共下水 / 24時間換気システム / 電気有 / 耐震構造 / コンロ2口以上 / システムキッチン / カウンターキッチン / コンロ3口 / 追焚機能浴室 / 浴室乾燥機 / 温水洗浄便座 / 洗面台 / トイレ2ヶ所 / 浴室1坪以上 / 床下収納 / ウォークインクロゼット / TVモニタ付インターホン / 複層ガラス
設備(その他)
    -

その他

物件番号
97195733
管理コード
-
建築確認番号
-
情報更新日
2026年01月20日
次回更新予定日
2026年02月03日
取扱会社
  • コーシンホーム株式会社
  • 大阪府堺市東区白鷺町1丁5番1‐2号 
  • TEL:0120-519-120
  • 大阪府知事 (3) 第056355号
  • 公益社団法人 全国宅地建物取引業協会連合会
    公益社団法人 全国宅地建物取引業保証協会
    公益社団法人 近畿圏不動産流通機構
    一般社団法人 全国賃貸不動産管理業協会
    一般社団法人 さかい空家バンク

堺市東区日置荘西町 新築一戸建ての他の物件

  1. A号地

    2SLDK (86.21㎡)

    2,890万円(110.86万円/坪)

支払いシミュレーション

月々の支払額
9.6
購入希望物件価格
万円
頭金
万円
金利
%
返済額(ボーナス1回分)
万円
返済期間

※ボーナスは自動で年2回分で計算されます。

近隣の物件

  1. 南野田 新築分譲住宅 全2区画

    堺市東区南野田

    2SLDK (101.93㎡)

    2,990万円

  2. 東区野尻町 戸建て

    堺市東区野尻町

    4LDK (99.99㎡)

    2,880万円

  3. 堺市東区大美野 7期 新築一戸建て

    堺市東区大美野

    3LDK (96.04㎡)

    3,980万円

  4. 大阪府堺市東区日置荘原寺町437-32

    堺市東区日置荘原寺町

    4LDK (85.28㎡)

    2,799万円

堺市東区日置荘西町 新築一戸建て

堺市東区日置荘西町 新築一戸建て

3,590万円

-

3LDK(91.91㎡)

お気軽にお問い合わせください

無料お問い合わせ

コーシンホーム株式会社

0120-519-120

9:00~18:00

(休:火曜日(隔週)、水曜日)